| 1. Structure and characteristic |
| |
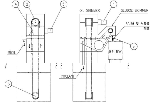
| − Purpose : |
It is applied to cutting oil tank for concentrated
coolant system, in which a lot of waste oil
and |
| |
floating sludge are generated. |
| |
|
| − Structure : |
Waste oil and other matters floating in
clean tank is pumped and induced by the belt
(felt |
| |
material) of oil skimmer.
Waste oil and other floating matters adsorbed
by belt are scraped by plate and sent to sludge
skimmer.
In sludge skimmer, floating matters and partial
waste oil are discharged to waste oil box
by scraper and clean waster inside sludge
skimmer is sent to clean tank and waste oil
is sent to waste oil box by oil & water
separator. |
| |
|
| − Characteristic : |
It is possible to remove waste oil and
other floating matters at the same time. |
| |
In case of AL cutting line, it displays
outstanding performance in the removal of
scum and sludge floating on clean water.
In case of FC cutting line, it displays outstanding
performance in the removal of carbon powder
floating on clean water. |
|
| |
 |
| |
| 2. Structure diagram |
 |
| No. |
Item |
| 1 |
DRIVING MOTOR
(for OIL SKIMMER) |
| 2 |
DRUM |
| 3 |
IDEL WHEEL |
| 4 |
BELT |
| 5 |
DRIVING MOTOR
(for SLUDGE SKIMMER) |
| 6 |
CHAIN & SCRAPER |
|
| |
| 3. Caution in operation and installation |
1) In installation,
be sure to maintain the horizontality of device.
(Otherwise, it may reduce filtering capacity)
2) In initial operation, be sure to set device by
adjusting the water level of pipe for oily water
separation.
Perform fine adjustment again when waste oil is
induced during use.
3) Sludge skimmer plays a role to enable sludge
to be transferred well by adjusting the tension
of chain in initial operation.
4) Oil skimmer belt shall be tightened by adjusting
with tension unit inside case.
* Too excessive tension may cause a load of motor. |
| |
| Item |
Spec. |
Quantity |
MAKER |
| MOTOR(OIL) |
S9160GTH,S9KC150BH |
1 |
Sungsin |
| MOTOR(SLUDGE) |
S9160GTH,S9KC90BH-S + S9GX10B-S |
1 |
Sungsin |
| BELT |
NITRIL BELT |
1 |
ISAAC |
| MAIN CHAIN |
RF2050S x A2/10LINK , 40LINK x 2伸 |
1 |
Dongseo |
| SPROCKET |
RS50 x 16T |
2 |
ISAAC |
|
| |
|
|
| |
 |
| 1.
External dimension |
 |
| |
| Unit : mm |
| MODEL |
Belt
width |
A |
B |
C |
D |
E |
| OSC-100 |
100 |
350 |
810 |
1130 |
610 |
000 |
| OSC-200 |
200 |
350 |
940 |
1185 |
635 |
000 |
|
| |
| 2.
Main part spec. |
| Item |
Spec. |
Quantity |
MAKER |
| MOTOR(OIL) |
S9160GTH,S9KC150BH |
1 |
SPG |
| MOTOR(SLUDGE) |
S9160GTH,S9KC90BH-S
+ S9GX10B-S |
1 |
SPG |
| BELT |
NITRIL BELT |
1 |
ISAAC |
| MAIN CHAIN |
RF2050S x A2/10LINK
, 40LINK x 2伸 |
1 |
Dongseo |
| SPROCKET |
RS50 x 16T |
2 |
ISAAC |
|
| |
| 3.
Others |
- Material :
MILD STEEL.
- Painting : powder coating and heat treatment
- Waste oil box is not supplied |
|
| |
|
|
| |
 |
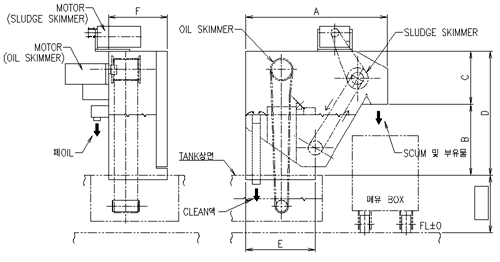
| 1.
External dimension |
 |
| |
| Unit : mm |
| MODEL |
Belt
width |
A |
B |
C |
D |
E |
F |
| OSC-100M |
100 |
610 |
305 |
230 |
535 |
300 |
250 |
|
| |
| 2.
Main part specification |
| Item |
Spec. |
Quantity |
MAKER |
| MOTOR(OIL) |
S9160GTH,S9KC200BH |
1 |
SPG |
| MOTOR(SLUDGE) |
S9160GTH,S9KC200BH |
1 |
SPG |
| BELT |
NITRIL BELT |
1 |
ISAAC |
| MAIN CHAIN |
RS50 x A1/10LINK |
1 |
Dongseo |
| SPROCKET |
RS50 x 10T |
2 |
ISAAC |
|
| |
3. Others
- Material : MILD STEEL.
- Painting : powder coating and
heat treatment
- Option : waste oil box and control
panel
|
 |
|
|
| |
|
|
| |
 |
| 1.
External dimension |
 |
| |
| Unit : mm |
| MODEL |
Belt
width |
A |
B |
C |
D |
| OS-100 |
100 |
440 |
310 |
460 |
400 |
|
| |
| 2. Main part spec. |
| Item |
Spec. |
Quantity |
MAKER |
| MOTOR |
S9160GTH,S9KC120BH |
1 |
SPG |
| BELT |
NITRIL BELT |
1 |
ISAAC |
|
| |
| 3.
Others |
- Material: MILD
STEEL.
- Painting : powder coating and heat treatment
- Waste oil box is not supplied |
|
| |
| |
| |